Egg 2,5m
Ertu hávaxin manneskja? Þá gæti þessi sauna verið fyrir þig!
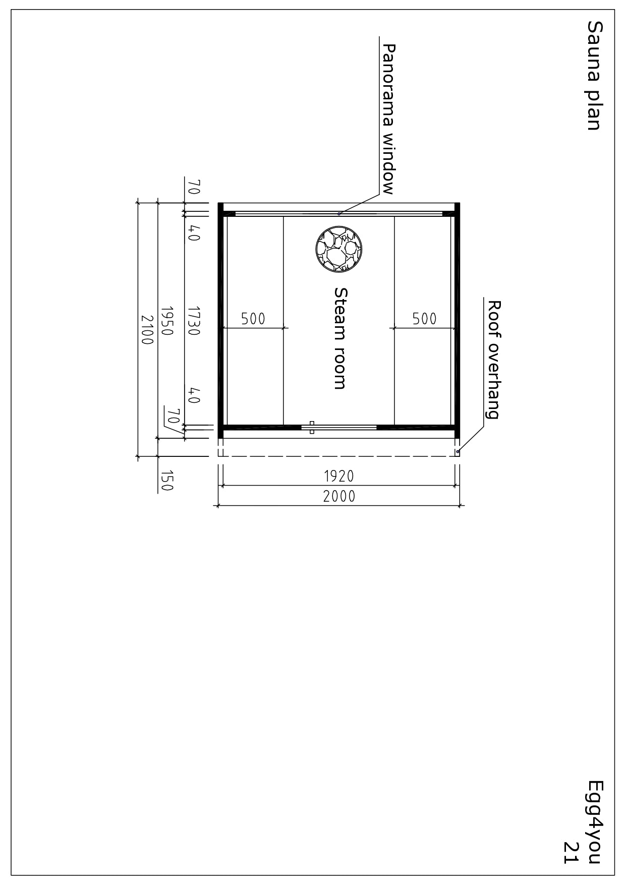
Hönnunin á Egg sauna er einstök og bíður upp á hærri lofthæð og breiða saunabekki.
Fyrir allt að 6 manns í einu, tveir fullorðnir geta legið á sitthvorum bekk í einu.
Pallur að framan fylgir með.
Val er um að hafa bakgler eða sleppa því.
Samsetningarmyndband í myndasafni.
Frábær fjárfesting í heilsu, vellíðan og gæðastundum með fjölskyldu og vinum.
| Hæð: 252cm | Lofthæð inn í klefa: |
| Lengd: 214cm | Þyngd: 450kg. |
|
Breidd: 203cm |
Ósamsett bretti:
|
- Viðurinn er hitameðhöndlaður. "ThermoWood".
- Saunabekkur; Hitameðhöndluð Ösp.
Upplýsingar um vöru
Ath. Þessi vara er ósamsett.
Góðar leiðbeiningar fylgja með.
Erum einnig með myndband hvernig röð aðgerða eru í samsetningunni.
Viltu fá þetta samsett?
Bjóðum upp á fagmannlega samsetningu með sérhæfðum "saunasmiðum" gegn gjaldi.
Hægt er að bæta við séróskum í samsetningarferlið. ✅
Viltu saunaklefa/tunnu strax?
Erum með töluvert mikið af samsettum saunaklefum og tunnum í sýningarsal og fyrir utan verslun okkar.
Hafðu samband í síma 777-2002 til að athuga hvort þinn drauma saunaklefi/tunna sé til á lager samsett!
Við getum afhent samdægurs.
Við getum afhent samdægurs.
Afhending og er lang auðveldasta ferlið! Okkar teymi eru algjörir reynsluboltar og aðstoðum þig í gegnum ferlið frá A-Ö.
Afhending á ósamsettu eintaki, SÆKJA:
Vinsamlegast komdu með viðeigandi stóra & sterka kerru eða flutningabíl sem kemur brettinu fyrir með engum óþarfa átökum. Við komum brettinu fyrir með lyftaraaðstoð. Þú lyftir ekki fingur!
Afhending á ósamsettu eintaki, SENDA:
Við sendum um land allt!
Vinsamlegast hafðu samband í síma 777-2002 fyrir fleiri upplýsingar/lausnir.
Afhending á samsettu eintaki:
Samsett eintök eru stór og þung og þurfa því í öllum tilfellum hífingu á að halda.
Við þekkjum til flesta kranabílstjóra á landinu, sérstaklega á Höfuðborgarsvæðinu.
Ertu út á landi? - Við getum skutlað klefanum niður á stöð gegn engu aukagjaldi og bent þér á nokkra kranabílstjóra á þínu svæði.
Vantar þér fleiri upplýsingar? Hafðu samband í síma 777-2002
